059 440055
PECORARI CASE:
professionisti modenesi al tuo servizio
Toggle navigation
Home
Immobili
Vendite
Affitti
Immobili commerciali
Capannoni
Cantieri
Chi siamo
Servizi
Vantaggi / Gruppo MoRE
Contatti
Compatta pannello di ricerca immobili
Espandi pannello di ricerca immobili
Tipologia
Vendite
Affitti
Immobili commerciali
Capannoni
Cantieri
Categoria
Qualsiasi
1 locale
2 locali
3 locali
4 o più locali
Appartamento
Attico
Azienda agricola
Baita
Cantina
Capannone
Casa singola
Castello
Duplex
Garage
Hotel
Laboratorio
Loft
Magazzino
Maisonette
Mansarda
Negozio
Porzione di casa
Porzione di villa
Posto auto
Posto barca
Rustico / Casale
Stabile / Palazzo
Tenuta
Terreno
Terreno agricolo
Terreno edificabile
Ufficio
Villa
Villa bifamiliare
Villetta a schiera
Città
Tutte
Bastiglia (MO)
Bomporto (MO)
Campogalliano (MO)
Castelfranco Emilia (MO)
Castelnuovo Rangone (MO)
Castelvetro di Modena (MO)
Cervia (RA)
Formigine (MO)
Gabicce Mare (PU)
Modena (MO)
Nonantola (MO)
Pavullo nel Frignano (MO)
Riccione (RN)
Soliera (MO)
Spilamberto (MO)
Vignola (MO)
Zona
Tutte
Prezzo (da - a)
Mq (da - a)
Codice
Ordinamento
Inserimento
Codice
Categoria
Città
Zona
Prezzo
Metri quadri
Cerca
Rustico/Casale In Vendita a Modena
690.000 €
518 m
2
5 Camere
2 Bagni
porticato
Previous
Next
Foto
Planimetrie
Codice
VR7464
Città
Modena
(Crocetta)
Categoria
Rustico/Casale
Locali
10
Box
1
Mq Box
30
Posti auto
6
Mq Giardino
3000
Piano
Terra
Classe energetica
G
Stato Immobile
Abitabile
Grado
Medio
Posizione
Periferia
Panorama
Vista Giardino
Orientamento
Nord Ovest Sud Est
Lati Liberi
4
Giardino
Privato
Arredi
Non Arredato
Tipo Soggiorno
Soggiorno
Tipo Cucina
Abitabile
Riscaldamento
Autonomo
Tipo Riscaldam.
Caldaia
Tipo Impianto
Radiatori
Fonte Energetica
Metano
Acqua Calda
Autonoma
Infissi
Legno Doppio Vetro
Serramenti
Discreto
Persiana
Oscurante Legno
Pavim. Giorno
Cotto
Pavim. Notte
Ceramica
Pavim. Cucina
Cotto
Pavim. Bagno
Ceramica
Accesso Disabili
No
Accesso interno disabili
Non accessibile
Isolamento termico
Nessuno
Accessori
Cancello Elettrico, Doppi Vetri, Passaggio Automobilistico
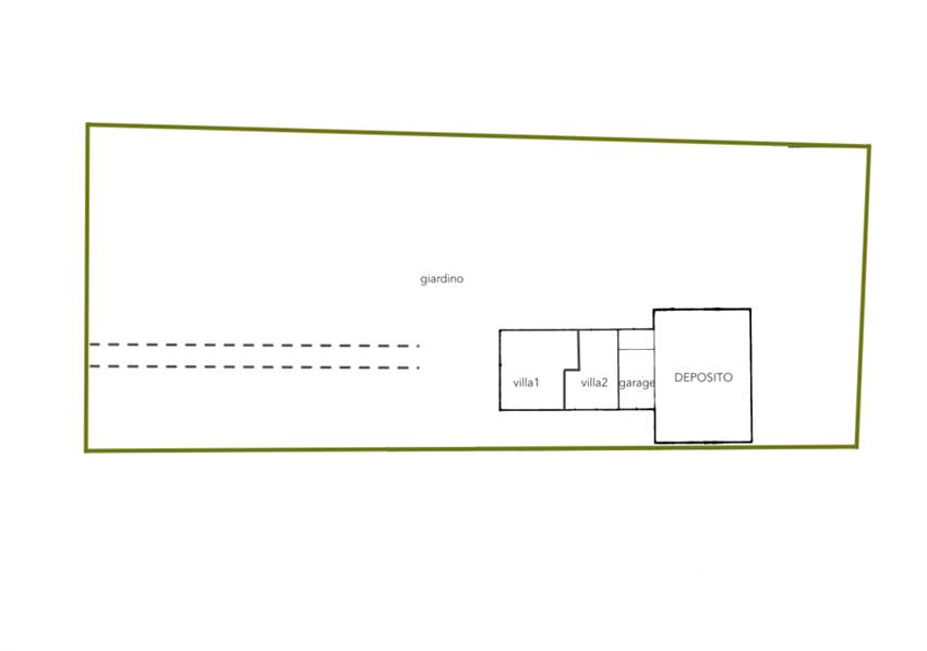
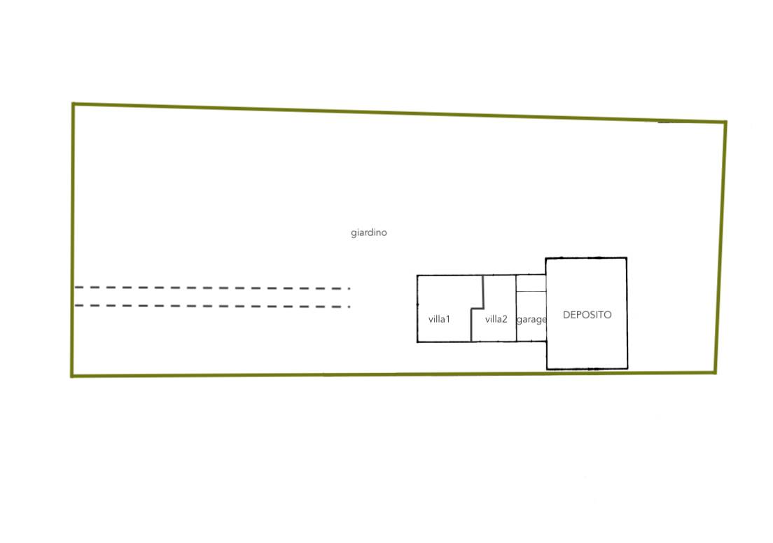
VR7464 Zona Crocetta casale composto di 3 unità di cui 2 ville con ingressi indipendenti e adiacente 3° blocco uso deposito. Le villette sono state ristrutturate nel 1977 e sono abitabili , il deposito , di ampia metratura, necessita invece di una ristrutturazione completa e si presta per essere trasformato in altra unità più ampia con servizi. Le 2 villette , sviluppate su 2 piani, sono rispettivamente di circa 160 e 100 mq, mentre il deposito è di circa 300 mq . Il giardino alberato che circonda il fabbricato supera i 3.000 mq CON POSSIBILITA' di acquisto di ulteriori 30.000 mq di terreno agricolo sul retro del caseggiato. Ottima soluzione per più famiglie con possibilità di indipendenza per ciascuno. Classe G
Planimetrie
Mappa
strada albareto , Modena (MO)
Condividi
Tweet
Mantieni impostazioni di default X
Uso dei cookies
Questo sito fa uso di cookies. I nostri cookies (propri) e quelli dei nostri Partners (cookies di terzi) servono per poterti offrire un'esperienza unica con noi. Per questo motivo, insieme ai nostri partners, raccogliamo e processiamo informazioni non sensibili (come l'identificatore del tuo dispositivo o le pagine che visiti).
In qualsiasi momento potrai eliminare, modificare o verificare le informazioni che condividi in
Cookie preference
o nella nostra
Cookie Policy
e
Privacy Policy
.
Necessari
Funzionali
Profilazione
Analitici
Accetta tutti
Rifiuta tutti
Accetta selezionati
Cookie preference