059 440055
PECORARI CASE:
professionisti modenesi al tuo servizio
Toggle navigation
Home
Immobili
Vendite
Affitti
Immobili commerciali
Capannoni
Cantieri
Chi siamo
Servizi
Vantaggi / Gruppo MoRE
Contatti
Compatta pannello di ricerca immobili
Espandi pannello di ricerca immobili
Tipologia
Vendite
Affitti
Immobili commerciali
Capannoni
Cantieri
Categoria
Qualsiasi
1 locale
2 locali
3 locali
4 o più locali
Appartamento
Attico
Azienda agricola
Baita
Cantina
Capannone
Casa singola
Castello
Duplex
Garage
Hotel
Laboratorio
Loft
Magazzino
Maisonette
Mansarda
Negozio
Porzione di casa
Porzione di villa
Posto auto
Posto barca
Rustico / Casale
Stabile / Palazzo
Tenuta
Terreno
Terreno agricolo
Terreno edificabile
Ufficio
Villa
Villa bifamiliare
Villetta a schiera
Città
Tutte
Bastiglia (MO)
Bomporto (MO)
Campogalliano (MO)
Castelfranco Emilia (MO)
Castelnuovo Rangone (MO)
Castelvetro di Modena (MO)
Cervia (RA)
Formigine (MO)
Gabicce Mare (PU)
Mirandola (MO)
Modena (MO)
Nonantola (MO)
Pavullo nel Frignano (MO)
Riccione (RN)
Sassuolo (MO)
Sestola (MO)
Soliera (MO)
Spilamberto (MO)
Vignola (MO)
Zona
Tutte
Prezzo (da - a)
Mq (da - a)
Codice
Ordinamento
Inserimento
Codice
Categoria
Città
Zona
Prezzo
Metri quadri
Cerca
Appartamento In Vendita a Modena
260.000 €
102 m
2
3 Camere
1 Bagni
Previous
Next
Foto
Planimetrie
Codice
VR7208
Città
Modena
(Amendola )
Categoria
Appartamento
Spese condominiali
2.500 €
Locali
4
Box
1
Mq Box
14
Piano
4
Classe energetica
F
Stato Immobile
Ristrutturato
Grado
Medio
Posizione
Periferia
Panorama
Vista Aperta
Orientamento
Ovest
Lati Liberi
2
Arredi
Non Arredato
Tipo Soggiorno
Soggiorno
Tipo Cucina
Cucinotto
Riscaldamento
Centralizzato
Tipo Riscaldam.
Caldaia
Tipo Impianto
Radiatori
Fonte Energetica
Metano
Acqua Calda
Centralizzata
Infissi
Legno Doppio Vetro
Serramenti
Ottimo
Persiana
Tapparella PVC
Pavim. Giorno
Gres Porcellanato
Pavim. Notte
Gres Porcellanato
Pavim. Cucina
Gres Porcellanato
Pavim. Bagno
Ceramica
Accesso Disabili
Nessuna Barriera
Accessori
Aria Condizionata, Armadio a Muro, Ascensore, Cancello Elettrico, Doppi Vetri, Parco Condominiale, Porta Blindata
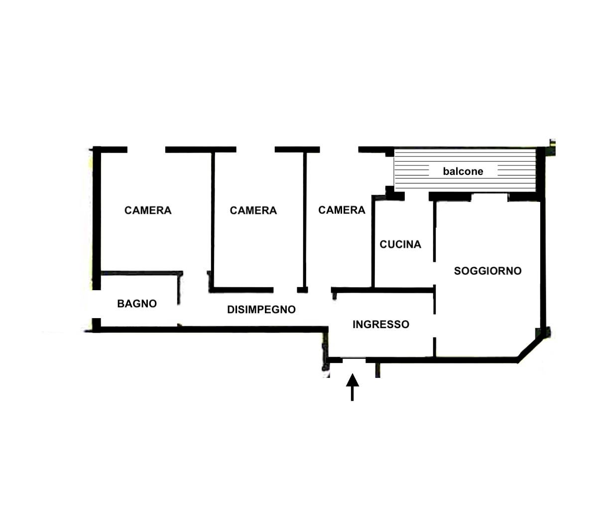
VR7208 ZONA PARCO AMENDOLA: Appartamento con begli affacci sul verde, ristrutturato posto al 4° piano con ascensore in palazzo in pietra faccia a vista, composto da: ingresso, sala con balcone, cucinotto, tre camere (una camera matrimoniale e due singole), un bagno. Soffitta. Garage.
Planimetrie
Mappa
via Altamura , Modena (MO)
Condividi
Tweet
Mantieni impostazioni di default X
Uso dei cookies
Questo sito fa uso di cookies. I nostri cookies (propri) e quelli dei nostri Partners (cookies di terzi) servono per poterti offrire un'esperienza unica con noi. Per questo motivo, insieme ai nostri partners, raccogliamo e processiamo informazioni non sensibili (come l'identificatore del tuo dispositivo o le pagine che visiti).
In qualsiasi momento potrai eliminare, modificare o verificare le informazioni che condividi in
Cookie preference
o nella nostra
Cookie Policy
e
Privacy Policy
.
Necessari
Funzionali
Profilazione
Analitici
Accetta tutti
Rifiuta tutti
Accetta selezionati
Cookie preference